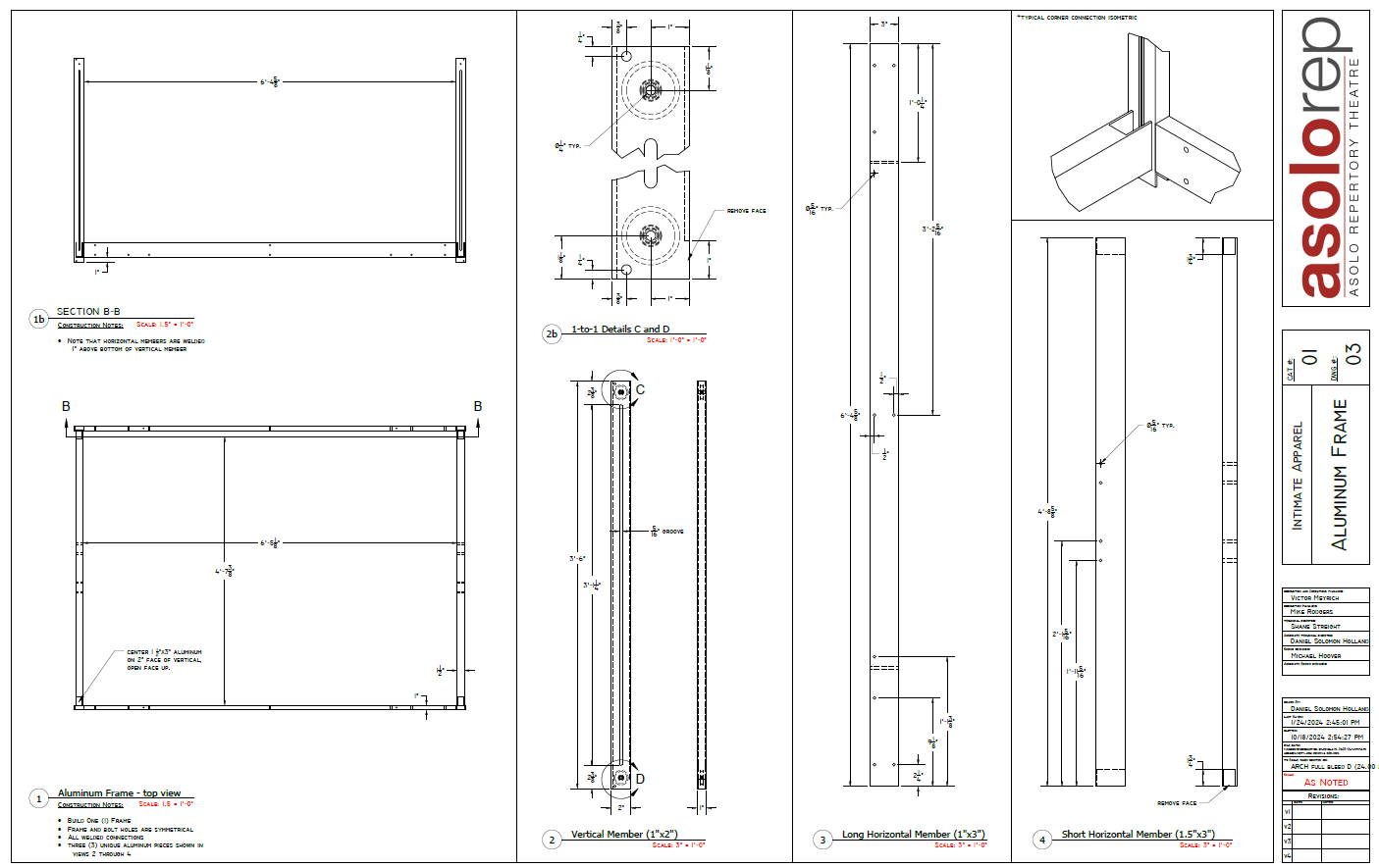
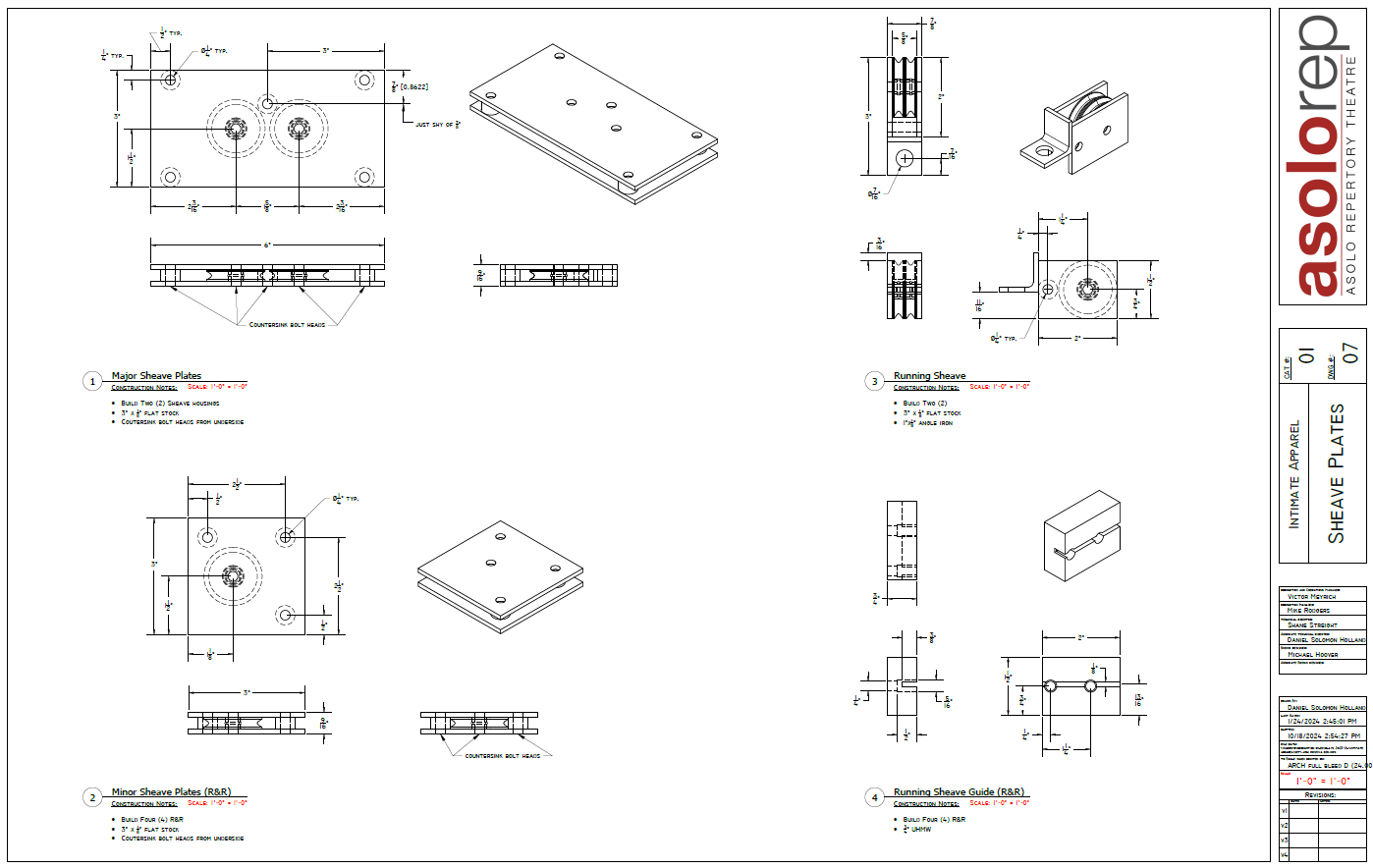
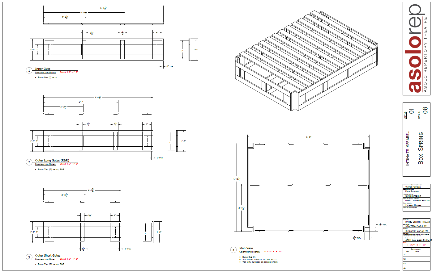
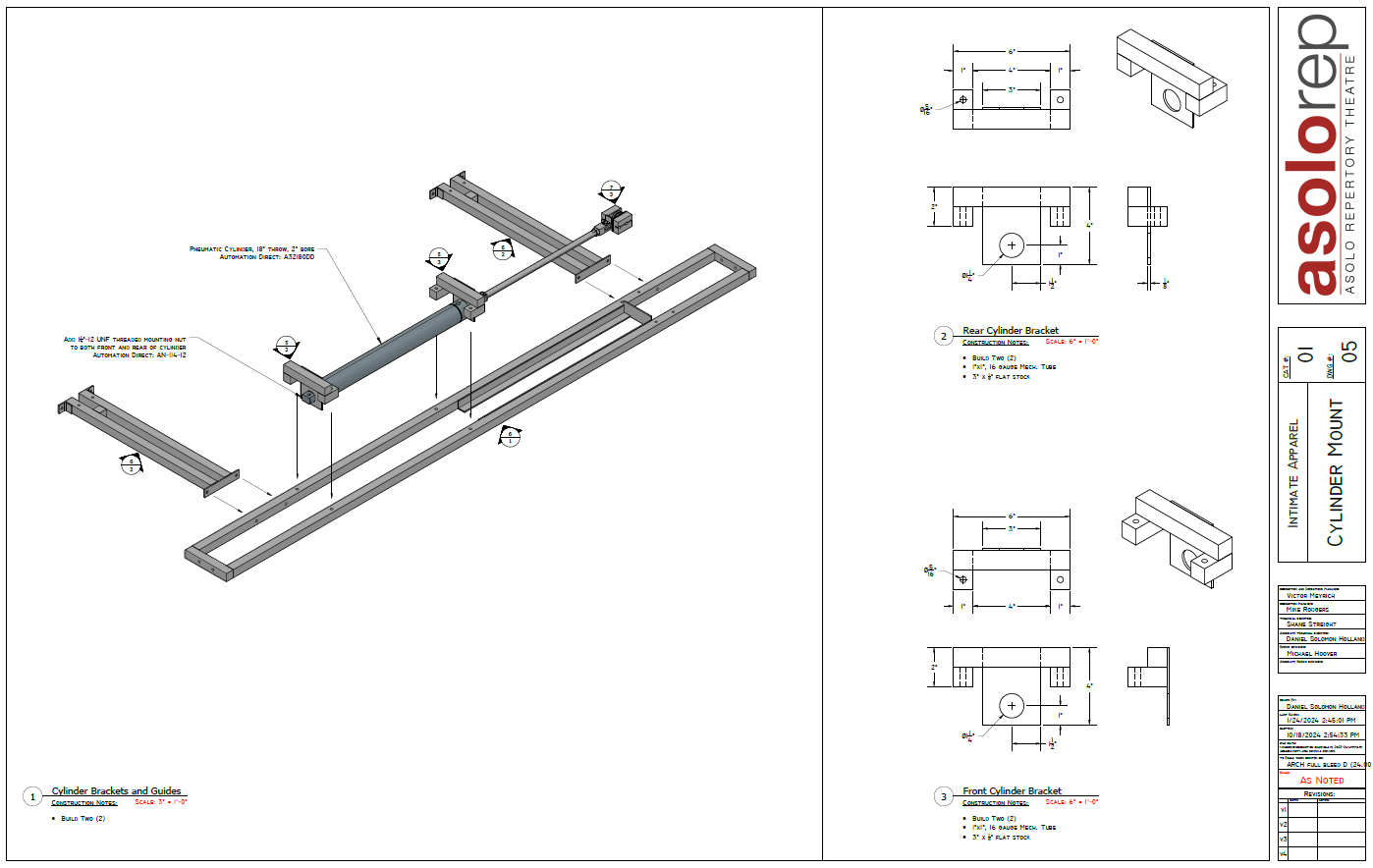
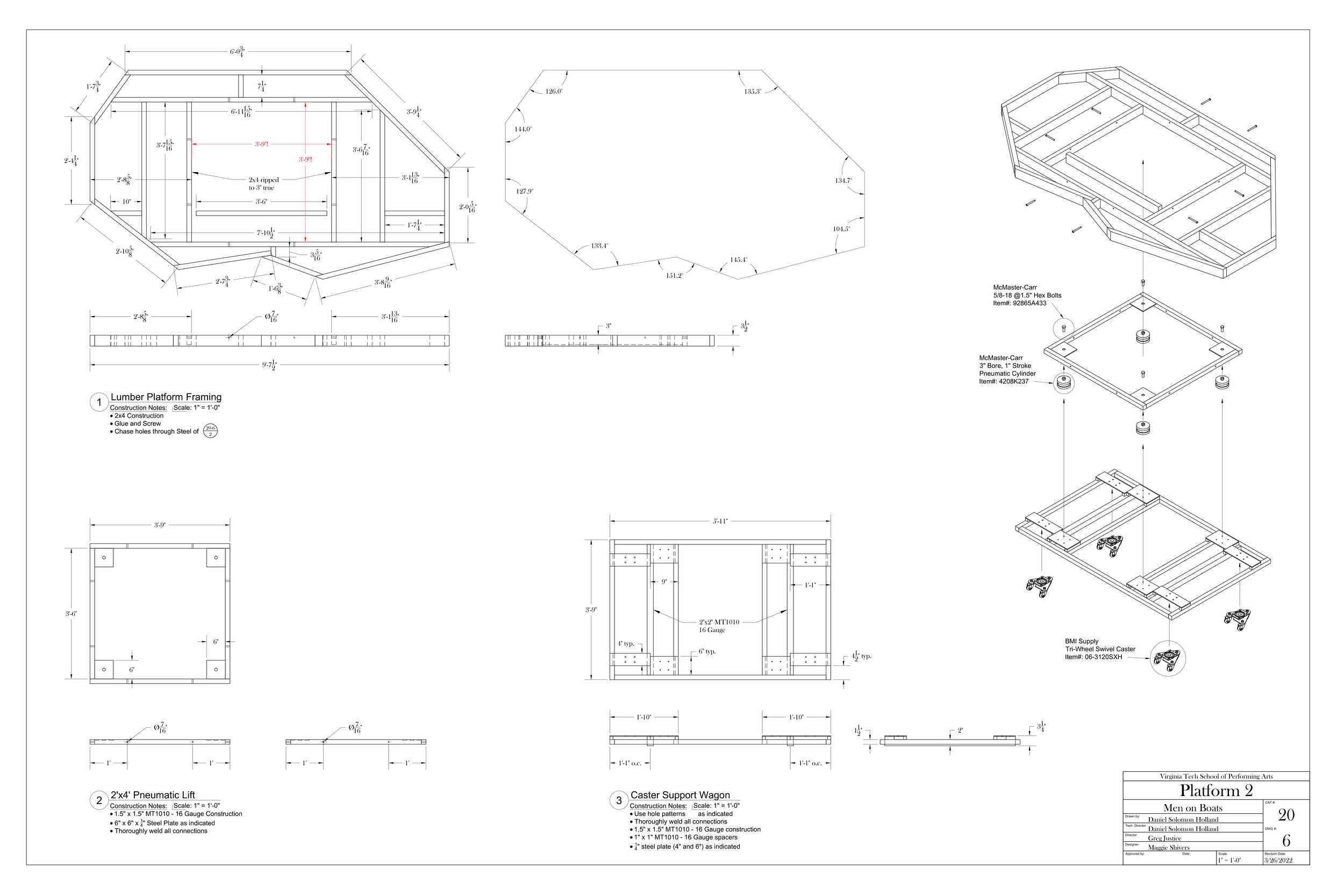
Drafting Samples

Budget Sample - Men on Boats

Line Set Schedule Example


Element Tracking Example


Build Calendar Example